東大阪市高井田本通2丁目
近鉄難波・奈良線布施駅
| 所在 | 東大阪市高井田本通2丁目 |
|---|---|
| 交通 | 近鉄難波・奈良線/布施駅 徒歩:12分 |
| 価格 | 6,780万円 |
| 土地 | 160.69㎡ |
| 建物 | 153.09㎡(46.3坪)(公簿) |
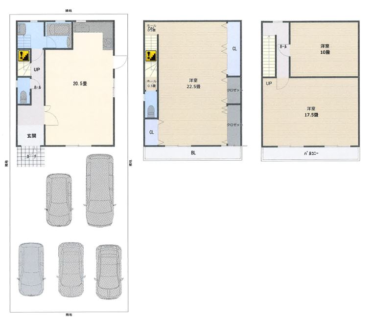
| 間取 | 5LDK |
| 構造 | 鉄骨造 地上3階建 / 階 |
| 築年数/ 完成予定日 | 2001年(平成13年) 7月 |
|---|---|
| 現況 | 空家 |
| 土地権利 | 所有権 |
| 接道 |
一方 東側 幅員6mに8.3m接面
|
| 建ぺい率 | 60 |
| 容積率 | 200 |
| 地目 | 宅地 |
| 都市計画 | 市街 |
| 用途地域 | 工業 |
| 私道負担 | 7.6㎡ |
| 学校 | 高井田西小学校 / 高井田中学校 |
|---|---|
| ガス | |
| 水道 | |
| 排水 | |
| 電気 | |
| 備考 |







